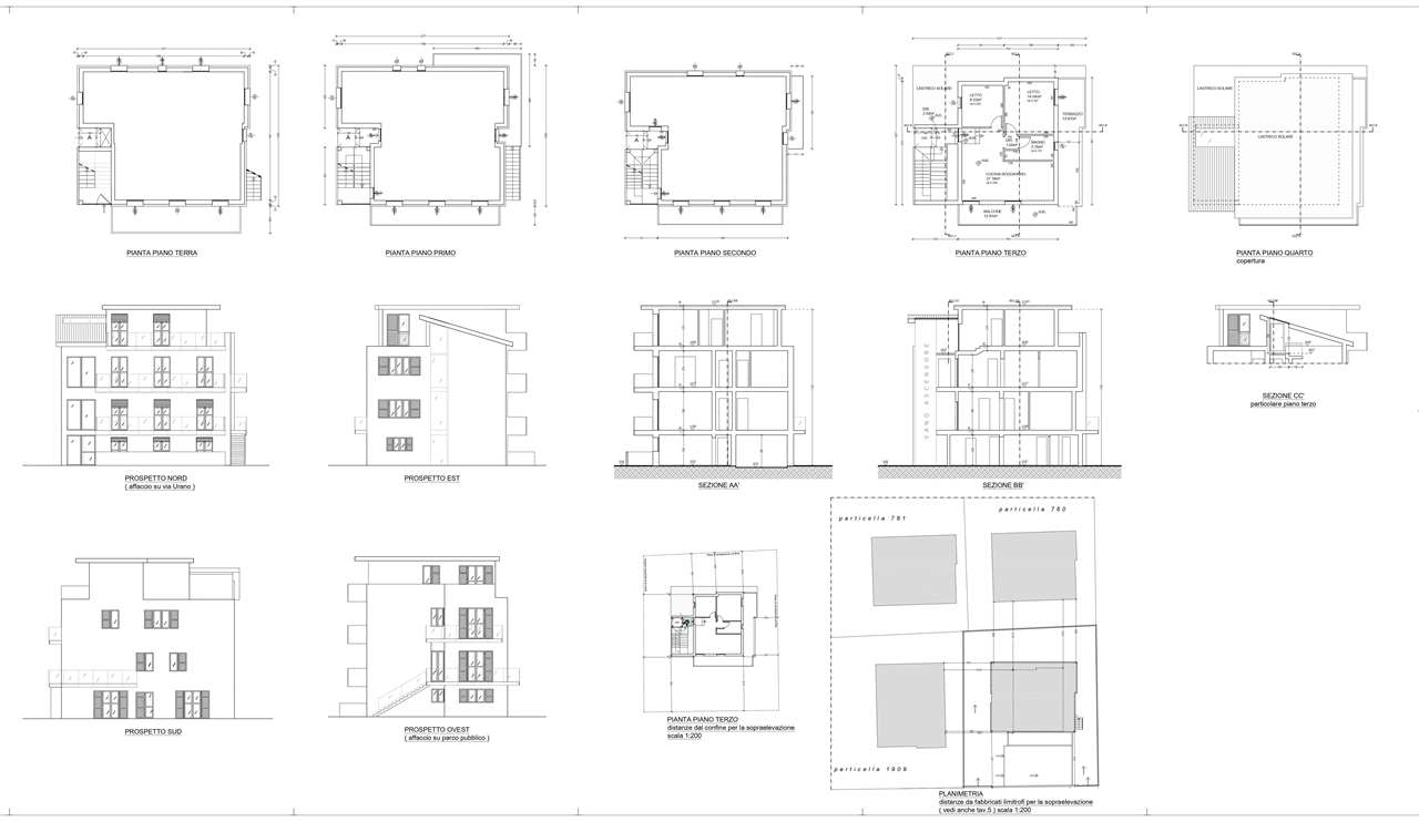
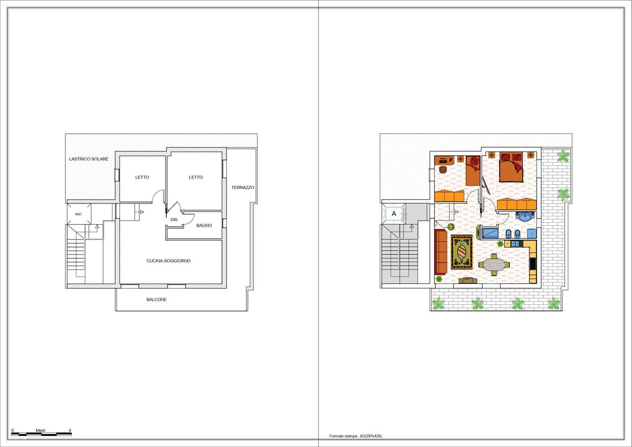
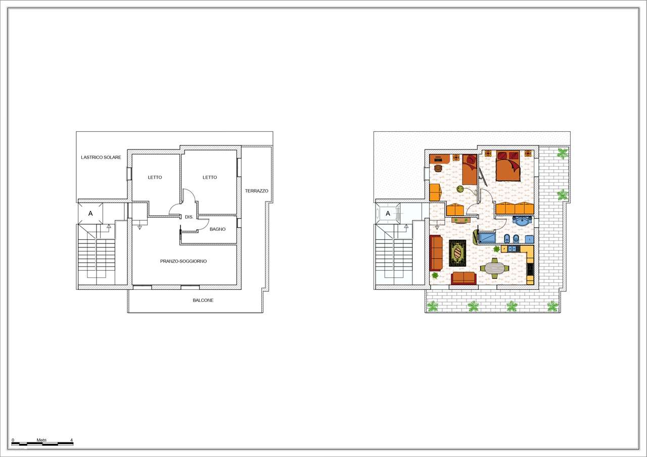
Proponiamo in vendita Attico di nuova realizzazione situato al terzo piano con ascensore, in una palazzina moderna composta da sole quattro unità. L’immobile sarà ultimato nell’estate 2026 e offre comfort contemporanei come riscaldamento a pavimento e impianto fotovoltaico. La soluzione garantisce ottima luminosità e spazi esterni vivibili.
Locali presenti nell’immobile:
• soggiorno
• cucina
• 2 camere
• 2 bagni
• terrazzo
• balcone
• lastrico solare
• posto auto
L’appartamento si distingue per l’efficienza energetica, le finiture di qualità e la presenza di più spazi esterni, ideali per vivere al meglio ogni stagione. Contesto tranquillo, moderno e con numero limitato di unità abitative.
Prezzo richiesto euro 570.000.
Per info 3482617636
Ti offriamo l'opportunità di rate mensili.
Contattaci per maggiori informazioni.