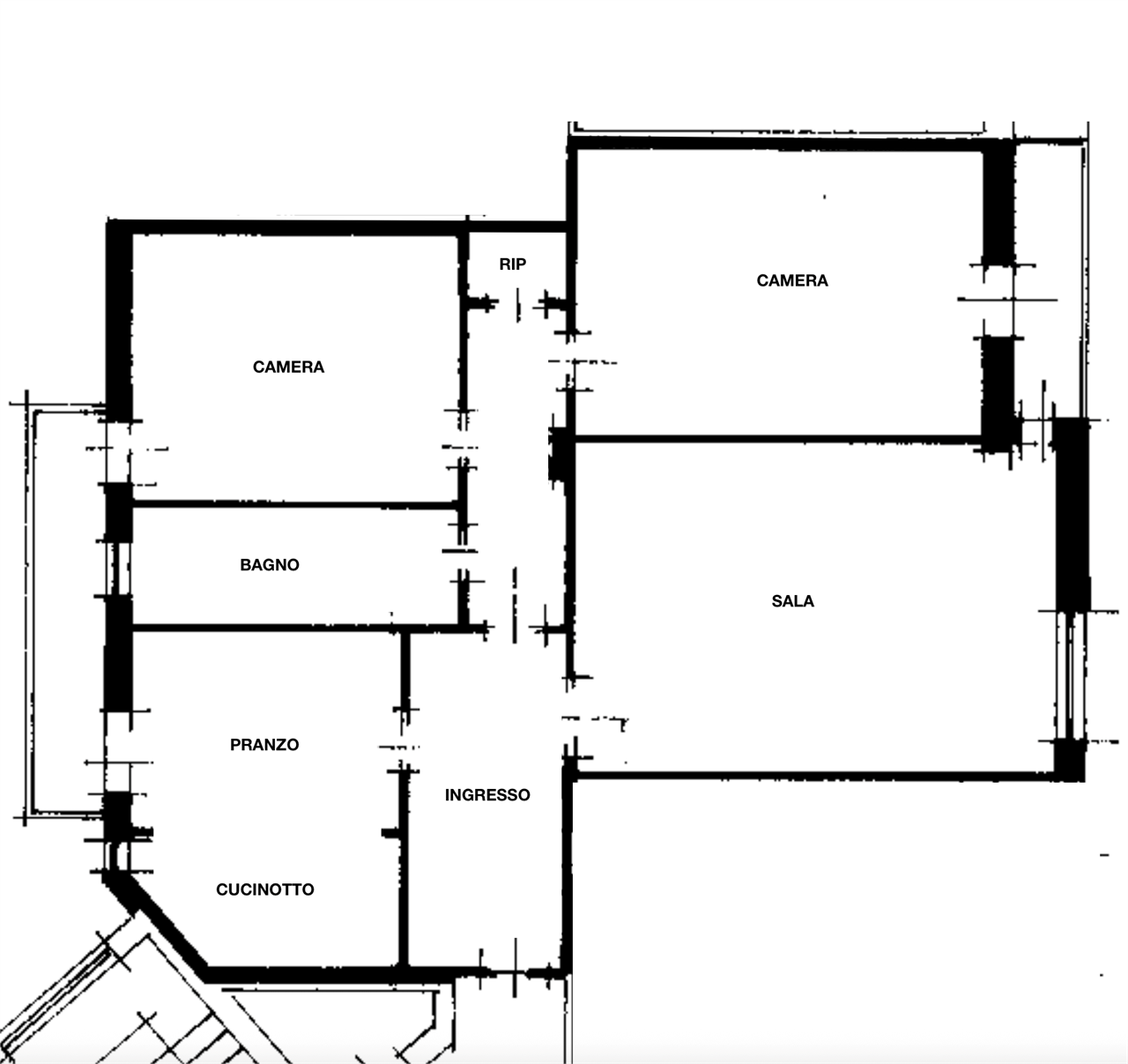
VXNP2904 In zona Viali appartamento di 117 mq comm.li posto al secondo piano (con ascensore) in condominio con facciate esterne appena rifatte composto da: ingresso, sala con balcone, cucina abitabile, 2 camere matrimoniali, un bagno. cantina e soffitta.
Riscaldamento centralizzato
FINITURE INTERNE dell’epoca di costruzione (anni 60/70) tranne il bagno ma rifatto diversi anni fa.
FINITURE ESTERNE Rifatto completamente con intervento 110, cappotto e caldaia nuova.
PREZZO TRATTABILE
Ti offriamo l'opportunità di rate mensili.
Contattaci per maggiori informazioni.