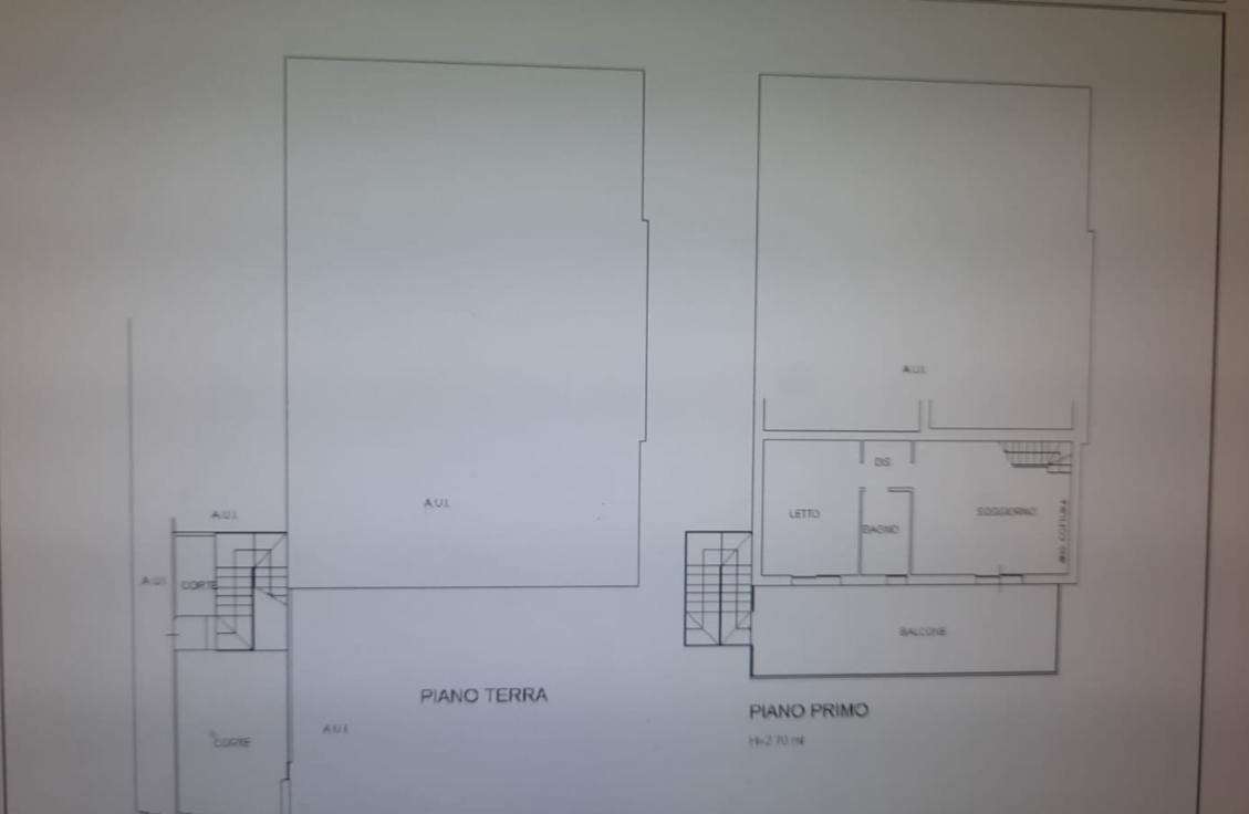
Proponiamo in vendita un appartamento moderno costruito nel 2015, situato al primo piano e disposto su due livelli, in zona Pinarella. L’ingresso indipendente conduce a un piccolo giardino privato e poi all’abitazione, caratterizzata da ambienti luminosi e ottime finiture. Al primo livello si trovano un’ampia zona giorno con accesso al grande terrazzo vivibile e un bagno. Al piano superiore si sviluppa la zona notte con tre camere matrimoniali, secondo bagno e pratico armadio a muro.
L’immobile è dotato di riscaldamento autonomo a pavimento, aria condizionata, tapparelle in alluminio, impianto d’allarme, videocamere, tetto in legno a vista e garage interrato motorizzato. Soluzione ideale per chi cerca comfort, indipendenza e spazi esterni.
Vani:
• Ingresso indipendente
• Giardino privato
• Soggiorno con cucina
• 3 camere matrimoniali
• 2 bagni
• Ampio terrazzo
• Armadio a muro
• Garage interrato
Prezzo richiesto euro 500.000.
Per informazioni e visite contattaci.
Ti offriamo l'opportunità di rate mensili.
Contattaci per maggiori informazioni.