€ 507.000 - VCUC3


  • 3 Camere

  • 2 Bagni

  • 4 Locali

  • Garage

  • Balcone

  • Terrazzo

  • Ascensore

Appartamento 3 camere 2 bagni, nuovo intervento

🏡 Nuovo appartamento con 3 camere – Piccola palazzina esclusiva

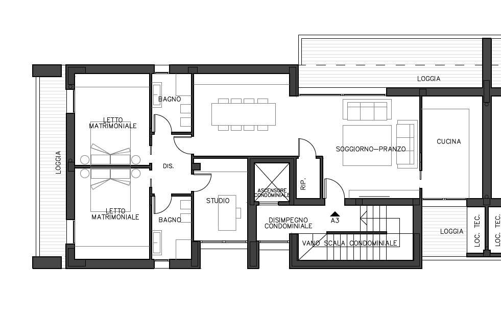
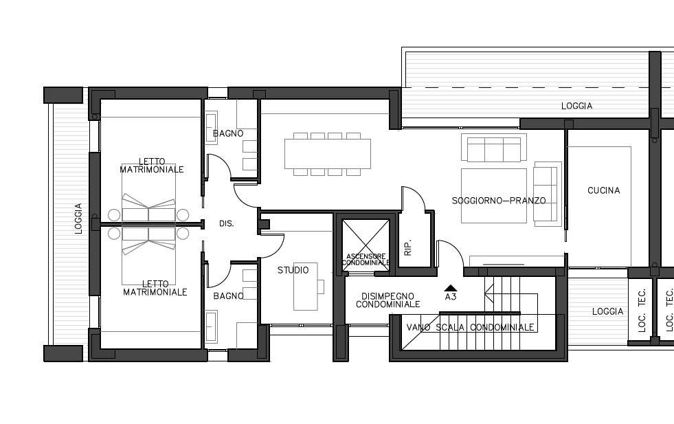
In piccola palazzina di sole 6 unità, proponiamo in vendita appartamento al 1° piano con ingresso indipendente e ampio soggiorno con cucina abitabile.

✨ Caratteristiche principali:

Ampio soggiorno con cucina abitabile,

Disimpegno notte con 3 camere e 2 bagni,

Ripostiglio,

Possibilità di acquistare garage e posto auto.

🌿 Vantaggi della palazzina:

Design moderno ed elegante che valorizza l’intera area,

Impianto di riscaldamento e raffrescamento autonomo con pompa di calore e supporto fotovoltaico,

Intervento Sisma Bonus Acquisti.

💰 Prezzo: € 507.000 + garage e posto auto

Soluzione ideale per chi cerca spazi generosi, comfort e tecnologia green, in un contesto riservato e di pregio.

Tipologia 4 o più locali Appartamento Case Nuove Costruzioni Modena
Contratto Vendite
Superficie 163 m2

Dettagli

  • Codice : VCUC3
  • Zona : Madonnina
  • Città : Modena
  • Classe : A
  • Garage
  • Balcone
  • Terrazzo
  • Stato : In Costruzione
  • Grado : Medio
  • Riscaldamento : Autonomo
  • Tipo soggiorno : Doppio
  • Tipo cucina : Abitabile
  • Serramenti : Nuovo
  • Totale piani : Due
  • Aria Condizionata
  • Ascensore
  • Cancello Elettrico
  • Doppi Vetri
  • Doppio Ingresso
  • Pannelli Solari
  • Porta Blindata
  • Video Citofono
  • Zanzariere

Costo immobile - € 507.000

Ti offriamo l'opportunità di rate mensili.

Sei interessato?

Contattaci per maggiori informazioni.

Acconsento l'iscrizione al programma di email marketing.*

Please wait...
Chiamaci